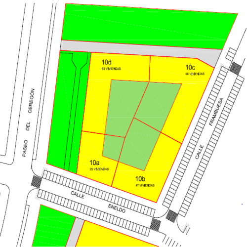
Una manzana destinada a viviendas protegidas en alquiler
VIVA es propietaria de suelo enclavado en la antigua UA 331 de la Avda. de Burgos, en concreto, de cuatro parcelas de uso residencial que constituirán una manzana cerrada.
VIVA ya ha construido en la antigua parcela 10 a, actual C/ Eneldo, una promoción de 25 viviendas en régimen de alquiler destinadas a jóvenes menores de 35 años, con garajes y trasteros.
Junto a esta promoción, se va a iniciar la construcción de otro bloque en la parcela colindante 10b, donde se ejecutará otra promoción de 47 viviendas protegidas en régimen de alquiler, trasteros y garajes, dentro del programa de viviendas colaborativas para jóvenes menores de 35 años,.
Esta promoción ya cuenta con licencia municipal de obras obtenida con el Proyecto Básico, y será licitada la obra con el correspondiente Proyecto de Ejecución.
Esta promoción dispondrá de espacios para usos comunes como lavandería, y otras zonas de estancia, ocio, o trabajo.
Las otras dos parcelas que conformarán la manzana, las parcelas 10c y 10d, se prevé incluir su desarrollo en el futuro Plan Municipal de Suelo y Vivienda de Valladolid, iniciando la redacción de los correspondientes Proyectos Básico y de Ejecución.
La parcela 10c cuenta con una superficie de 1.603,97 m2, y una edificabilidad de 5.624,00 m2, estimándose un número de 60 viviendas, mientras la parcela 10d de 1.651,63 m2 de superficie y una edificabilidad de 5.815,00 m2, se estima un número de 63 viviendas, estimaciones ambas conforme al proyecto actuación de la UA331. Se prevé que estas dos promociones se destinen a viviendas de alquiler en régimen mixto, que facilite la convivencia en esta manzana de distintos colectivos junto a menores de 35 años, régimen general, mayores de 65 años, familias.





